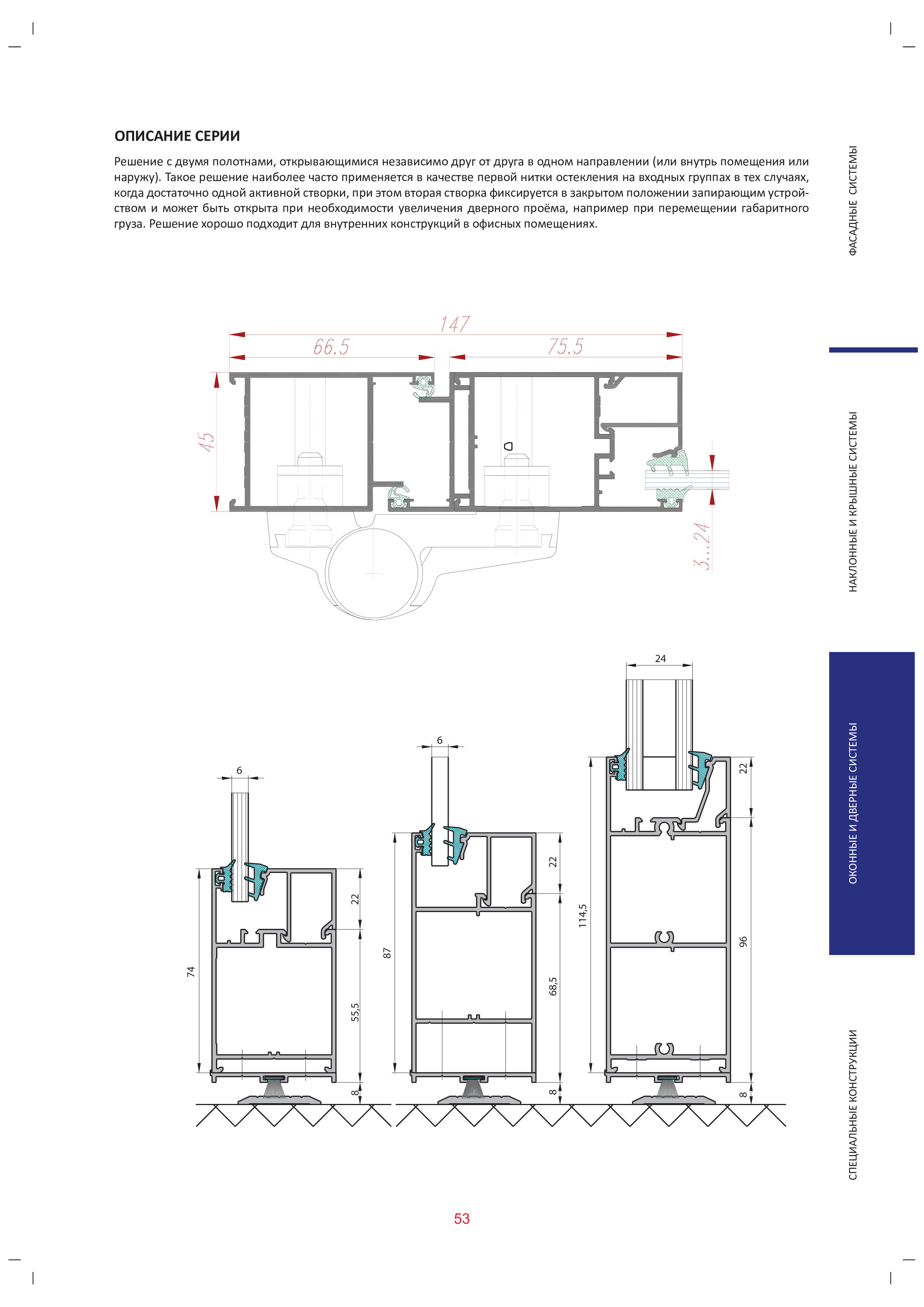
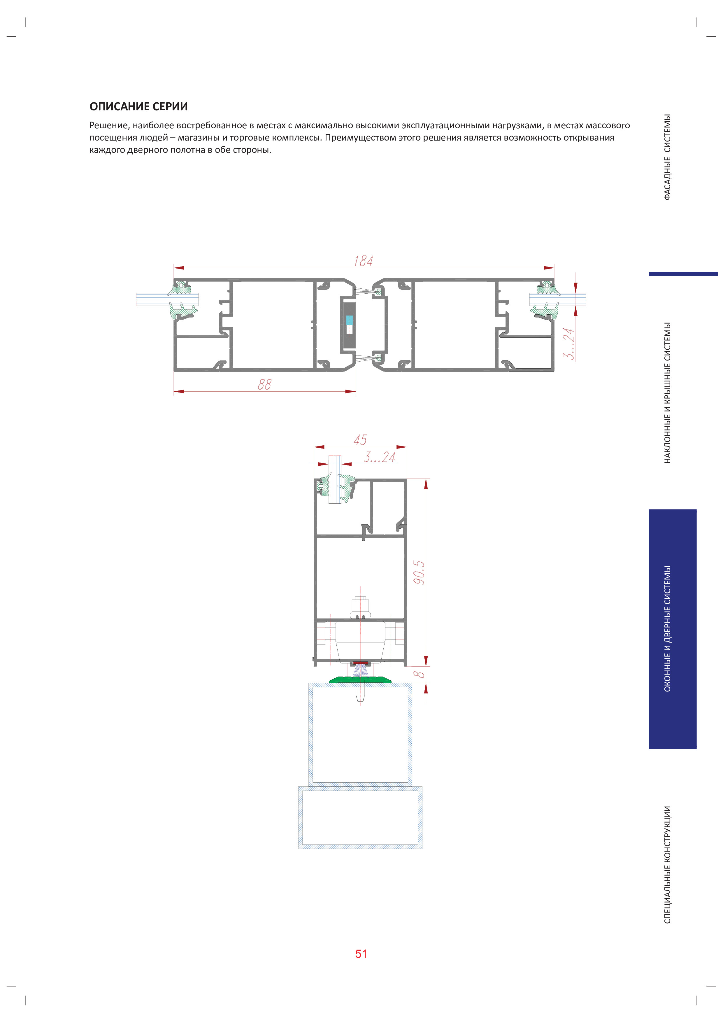
АО "ТАТПРОФ"
«ТАТПРОФ» - крупнейшая российская компания в области переработки алюминия методом экструзии. Основанное в 1990 году предприятие на сегодняшний день является признанным на рынке экспертом в разработке высокотехнологичных решений из алюминия для различных отраслей народного хозяйства. В 1995 году предприятие вывело на рынок строительную систему «ТАТПРОФ» – уникальную систему светопрозрачных ограждающих конструкций, которая до сегодняшнего времени является самой востребованной на рынке, а изделия, выпускаемые на ее основе, соответствуют требованиям всех действующих стандартов. Компания занимает лидирующие позиции по объему производства экструдированного профиля в России. «ТАТПРОФ» - основной поставщик на объекты универсиады в Казани 2013, Олимпийских игр в Сочи 2014, Кубок конфедераций FIFA 2018.
Contactos
- 423800, Республика Татарстан, г.Набережные Челны, ул.Профильная, д.53





















